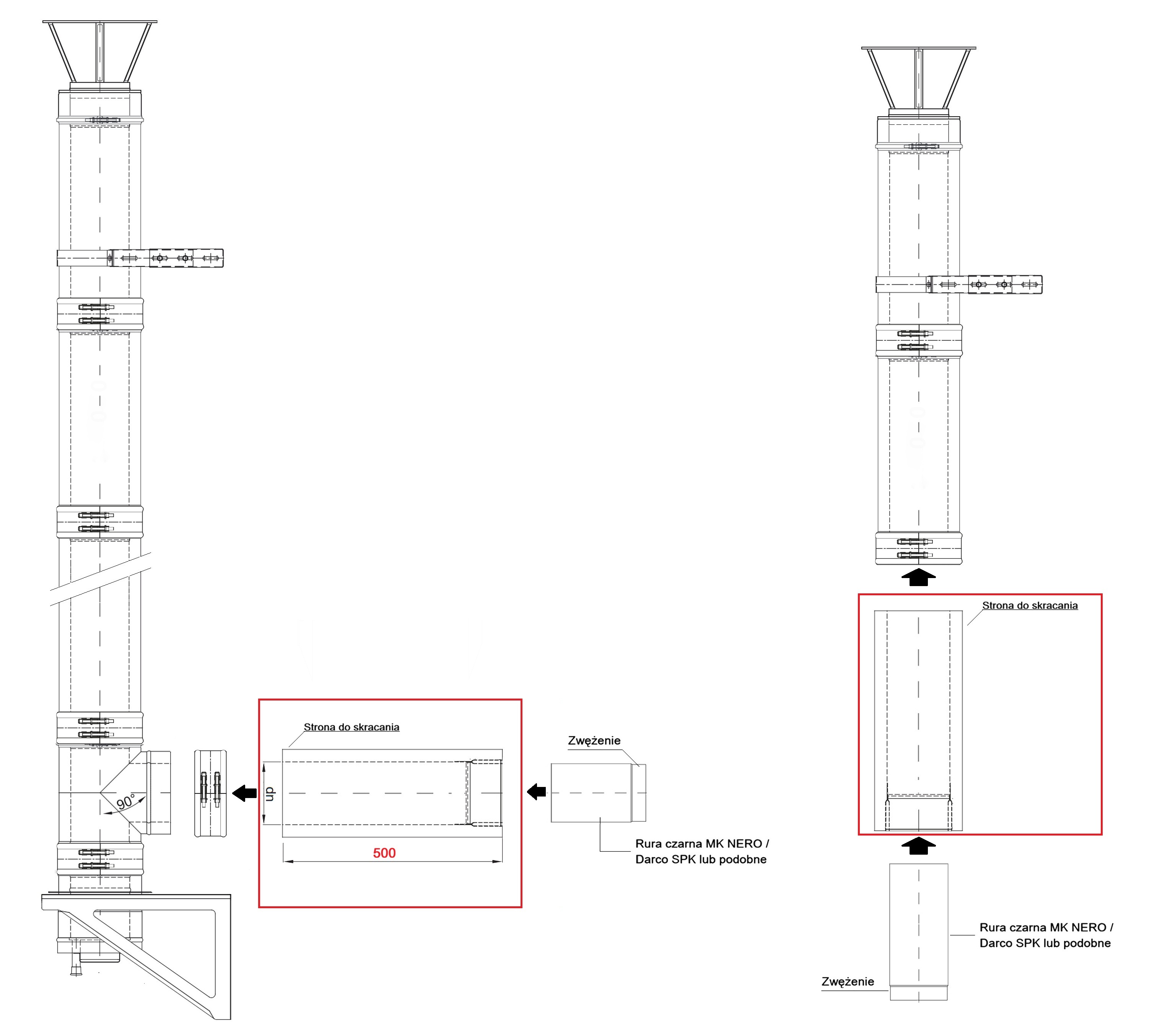
Rura 500mm do połączenia z rurą czarną NERO lub podobną z możliwością skracania
Wystaw opinię o produkcie
Ceny podane bez kosztów dostawy.
Ceny podane bez kosztów dostawy.
Wybierz wariant produktu:
Poszczególne warianty mogą różnić się ceną
Kod produktu: 1ATO500XXX
GLS / UPS / DPD / Schenker
Koszty dostawy wybranego produktu
Cena dostawy dotyczy tego produktu (w wybranym wariancie - jeśli dotyczy). Może się ona zmienić po dodaniu innych produktów do koszyka.
Zapytaj o produkt
Administratorem danych osobowych jest FHU INSTEL Zdzisław Pihulak . Przetwarzamy je w celu przesłania odpowiedzi na zapytanie. Więcej informacji dotyczących przetwarzania danych osobowych znajduje się w polityce prywatności.
Udostępnianie karty produktu
Opis
Rura izolowana ATO 500 mm – do połączenia systemu kominowego MKD z rurami jednościennymi czarnymi NERO lub Darco ze stali DC01
Rura izolowana ATO o długości 500 mm to wysokiej jakości element przeznaczony do łączenia systemu kominowego izolowanego MK MKD z jednościennymi rurami spalinowymi czarnymi, takimi jak MK NERO, Darco SKP lub systemy o podobnych parametrach. Produkt został zaprojektowany z myślą o trwałości, bezpieczeństwie i maksymalnej szczelności połączeń w instalacjach odprowadzania spalin. Zakończenie rury izolowanej ATO łączy się z szerszą stroną rury czarnej i dzięki temu nie ma możliwości wydostawania się kondensatu z połączeń rury czarnych.

Cechy i budowa rury ATO:
- Długość całkowita: 500 mm
- Dostępne średnice (wew./zew.): 120/180, 130/190, 150/210, 160/220, 180/240, 200/260
- Zastosowanie: połączenie systemu kominowego izolowanego z rurami jednościennymi
- Zakończenie: z jednej strony dekiel izolacji oraz oszewka z kołnierzem wewnętrznym antykondensacyjnym i kołnierzem zewnętrznym stabilizującym
- Kierunek montażu: rura czarna jednościenna powinna być skierowana w stronę komina węższą stroną
- Możliwość dopasowania: od strony komina rurę można skracać, aby dostosować ją do grubości ściany lub wymaganej wysokości
- Opcje dodatkowe dostępne za dopłatą: możliwość zamówienie wersji malowanej na dowolny kolor z palety RAL, możliwość wykonania wersji nierdzewnej matowej lub szlifowanej.
Takie rozwiązanie konstrukcyjne skutecznie eliminuje ryzyko wydostawania się kondensatu z połączeń pomiędzy rurami jednościennymi, zapewniając długotrwałą szczelność i bezpieczeństwo użytkowania.
Materiały i wykonanie:
- Płaszcz wewnętrzny: stal kwasoodporna 1.4521 0,5mm lub 1.4404 0,6mm
- Płaszcz zewnętrzny: stal nierdzewna 1.4509/1.4301
- Izolacja: wełna mineralna wysokotemperaturowa o gęstości 85–190 kg/m³
- Maksymalna temperatura: T600
- Odporność na pożar sadzy: TAK (T1000)
- Rodzaj połączeń: wciskane z możliwością spięcia obejmą
- Rodzaj paliwa: drewno, drewnopochodne, pellet drzewny
- Gwarancja: 30 lat
- Rodzaj pracy: podciśnienie, praca na sucho
- Certyfikaty: CE, TÜV Nord, ISO EN 9001, ISO EN 14001
Dzięki zastosowaniu wysokogatunkowych materiałów rura ATO charakteryzuje się odpornością na korozję, wysokie temperatury i działanie kondensatu, co gwarantuje jej długą żywotność w wymagających warunkach pracy.
Montaż i obróbka:
Rurę można skracać od strony komina, aby idealnie dopasować ją do konkretnej instalacji. Do cięcia zaleca się użycie tarczy do stali szlachetnej, co zapewnia precyzyjne i bezpieczne dopasowanie elementu.
Rysunek techniczny:


Rurę ATO można umieścić zarówno w poziomie w celu przejścia przez ścianę, jak i w pionie do połączenia systemów izolowanych z rurami jednościennymi czarnymi MK Nero, Darco SKP lub podobnymi. Rura tego typu może łączyć się z rurą ATO stroną szerszą oraz węższą. Kierunek połączenia obu elementów nie ma znaczenia, daje to dużą swobodę przy montażu systemu kominowego.
Schemat obrazujący zastosowanie rury izolowanej MKD ATO:
Poniższe zdjęcia obrazują sposób łączenia rury spalinowej czarnej DC01 MK NERO lub Darco SKP z rurą izolowaną ATO:




Możliwość zamówienia wersji malowanej na dowolny kolor z palety RAL.
Na życzenie istnieje możliwość wykonania wersji malowanej na dowolny kolor z palety RAL. Szczególnym zainteresowaniem ciszy się kolor czarny (RAL 9005) w wersji matowej lub antracyt (RAL 7016). Dla wymagających klientów mamy również kominy o powierzchni srebrnej matowej szlifowanej. Wykonania specjalne wyceniane są indywidualnie. W celu otrzymania oferty prosimy o przesyłanie zapytań na nasz adres: biuro@einstel.pl, w wiadomości prosimy o umieszczenie numeru telefonu w celu dalszej konsultacji.



Cechy produktu
Systemy MKD Premium PAKIETY
- Kraj produkcji: Polska
- Certyfikaty: CE, TÜV Nord, ISO EN 9001, ISO EN 14001
- Materiał rdzenia: gat. 1.4404 (AISI 316L) / 1.4521
- Materiał powłoki zewnętrznej: gat. 1.4301 lub 1.4509 (połysk)
- Warstwa izolacyjna: wełna mineralna o gęstości 85-190 kg/m3
- Grubość warstwy izolacyjnej: 30 mm
- Sposób połączeń: połączenia wciskane kielich / zyka z obejmą zaciskową
- Rodzaje paliw: gaz, olej, drewno, pellet, brykiet, węgiel drzewny
- Klasa odporności na korozję: V3 dla 1.4404 oraz V2 dla 1.4521
- Maksymalna temperatura pracy: 600°C
- Temperatura szczytowa 1000°C
- Odporność na pożar sadzy: TAK
- Odporność na zamarzanie i odmarzanie: TAK
- Montaż: montaż wewnętrznym kielichem do góry
- Maksymalna wysokość od ostatniego mocowania do szczytu: 3 m
- Rodzaj pracy: podciśnienie
- Gwarancja: 30 lat (gaz, olej, drewno, drewnopochodne, pellet A1 praca na sucho)
- Kompatybilność z innymi systemami możliwość stosowania przyłącza kominowego ze stali szlachetnej lub czarnej z wykorzystaniem redukcji
- Maksymalna odległość pomiędzy obejmami: 4 m
- Opór cieplny: 0,56 m2K/W
- Sposób dostawy: ubezpieczona dostawa kurierska
Pliki do pobrania
Deklaracja CE
Warunki gwarancji
Opinie
Jeśli dodałeś/-aś recenzję, a nie pojawiłą się na liście, być może oczekuje na moderację.
Wystaw opinię o produkcie
Bezpieczeństwo produktu
Certyfikaty i ostrzeżenie bezpieczeństwa
- Posiada oznaczenie CE (zgodność z normami UE).
Producent
MK Sp. z o.o.
Kadłubia, ul. Kominowa 5
68-200 Żary, Polska
Pliki do pobrania
Instrukcja systemu MKD